Llámenos: 91 226 34 05

Nave - Otras

Otras - ALCORCÓN

Referencia : 1943

Tipo: Nave

Habitaciones: 0

M2: 3800

Baños: 0

Ascensor: -

Terraza: -

 

Precio : 3.300.000 €


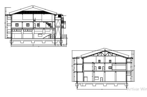
Nave en venta en Polígono Industrial Urtinsa, en Alcorcón.
 
Está en perfectas condiciones para iniciar una actividad comercial.
 
Superficie: 3.500 m²
 
La nave está distribuida en 4 plantas. Todas las plantas tienen acceso para vehículos con rampa exterior.
 
El Polígono Industrial Urtinsa se encuentra en Alcorcón, Madrid, cerca del casco urbano de la ciudad y es uno de los polígonos industriales más importantes de la región. Está bien comunicado con las principales vías de comunicación, como la A-5, la M-40 y la M-50, lo que facilita el acceso.
 
El polígono alberga a una gran cantidad de empresas de diferentes sectores, lo que crea un entorno empresarial dinámico y próspero. 
 
El polígono cuenta con una amplia oferta de servicios, incluyendo restaurantes, hoteles, comercios. Hace que sea un lugar atractivo para las empresas que buscan una ubicación con todo lo necesario para su actividad.
 
Esta nave industrial es una oportunidad de inversión única.
 
Contacte con nosotros para más información.

Galería de Imagenes